聯系我們
聯系人:張先生 186 2630 8316
電 話:0510-83489568
傳 真:0510-83489568
網 址:www.bjlantianlvjing.com
郵 箱:zhang2008haitao@outlook.com
地 址:江蘇省無錫市新吳區金城東路380號

個人微信號

微信公眾號







| ● | 機架形式 | 龍門式框架結構,整體回火噴沙處理 |
| ● | 導軌間距 | 4000mm |
| ● | 導軌長度 | 12000mm |
| ● | 導軌型號 | 43KG/米重軌,每根/2米 |
| ● | 驅動方式 | (松下)伺服雙邊驅動 |
| ● | 數控系統 | 上海方菱F2500B |
| ● | 操作臺位置 | 座式,右操作 |
| ● | 電控部分 | 正泰電器 1套 |
| ● | 數控割炬移動體 | 鋁制 1套 |
| ● | 驅動系統 | 日本松下伺服 3套 |
| ● | 減速系統 | 蘇州HFR 3套 |
| ● | 橫向機械傳動 | 精密齒輪齒條及導軌 1套 |
| ● | 縱向機械傳動 | 精密齒輪齒條 2套 |
| ● | 橫向布線 | 拖鏈 1套 |
| ● | 數控火焰割炬 | 1套 |
| ● | 縱橫向電子限位開關 | 4套 |
| ● | 縱向機械限位裝置 | 2個 |
| ● | 有效切割寬度 | ≤3200 mm |
| ● | 有效切割長度 | ≤10000 mm |
| ● | 火焰切割厚度 | 5-200mm |
| ● | 空程行走速度 | 20- 6000 mm/mi無級可調 |
| ● | 火焰切割材質 | 碳鋼 |
| ● | 割炬升降行程 | ≤150mm |
| ● | 整機精度標準 | 符合JB/T5102-1999 |
| ● | 直線定位精度 | ± 0.2 mm / 1 m |
| ● | 直線重復精度 | ± 0.2 mm / 1 m |
| ● | 綜合畫線精度 | 劃800×800MM方格,對角線,回圓點精度± 0.2 mm |
| ● | 速度誤差 | 3% |
| ● | 切割粗糙度(質量切割) | Ra≤12.5 |
| ● | 切割介質 | 丙烷,氧氣 |
| ● | 環境溫度 | -10℃~+40℃ |
| ● | 相對濕度 | ≤95%無冷凝 |
| ● | 周邊環境 | 通風,無較大沖擊 |
| ● | 電源電壓 | 220V(AC)±10% |
| ● | 電源頻率 | 50HZ±1HZ |
| ● | 主機輸入功率 | 3KW |
| ● | 氧氣入口壓力 | 0.8~1 Mpa |
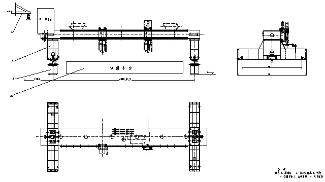
| 圖片及結構部位名稱 | 特色說明 |
![]() |
設計特色:該設備結構穩定,造型美觀,長壽命 機架形式:寬體龍門式,適合大跨距切割 端梁定位:采用四點定位,重心穩定,良好的動態平衡 加工方式:焊接、整機爐內回火、表面噴沙處理并噴涂環氧底漆 去應力處理:整機回火處理,并震動時效雙處理手段,可保證去除焊接應力 |
![]() |
驅動方式:日本松下雙邊伺服驅動 傳動方式:齒輪齒條伺服高精度定位傳動 連接方式:齒輪齒條彈性嚙合連接 承載方式:四輪承載,外球面大滾輪 保護措施:前后端有清潔除塵銅皮裝置 |
![]() |
電器控制柜特點:專業機箱廠定制,大尺寸箱體散熱快,外形美觀密封性能好,有效提高數控系統電器元件使用壽命,內部電器元件布置合理,便于維護。 |
![]() |
傳動齒輪加工方式:該齒輪采用45號鋼經過精密滾齒加工后齒面淬火處理達到HRC40-45,再經過高精密磨齒加工使齒輪精度達到精度標準,從而保證機器在運行過程中的累積誤差降低,從而提高整機切割質量精度。 |

